Espace propriétaire
fr
Se connecter
Se connecter

Votre recherche

Saint-Magne (33125)

635 m²

Terrain à bâtir de 635m² à Saint Magne (33125)

121 000 €
Ref : TVVTE20000090
A propos de ce bien

Terrain à vendre – 635 m² viabilisé en lotissement – Saint-Magne (33125)

À découvrir sans tarder : superbe terrain de 635 m², situé dans un lotissement résidentiel de qualité à Saint-Magne, dans un cadre verdoyant, calme et recherché.

 

-      Terrain entièrement viabilisé (eau, électricité, tout-à-l’égout, télécom)

-       Libre de constructeur, mais nous pouvons vous accompagner dans votre projet avec un partenaire local de confiance

-      Environnement paisible, en lisière de forêt, idéal pour les amoureux de nature

-      Proche du bourg, des écoles, commerces et accès vers Bordeaux et les grands axes

 

 Projet global à moins de 300?000 € :


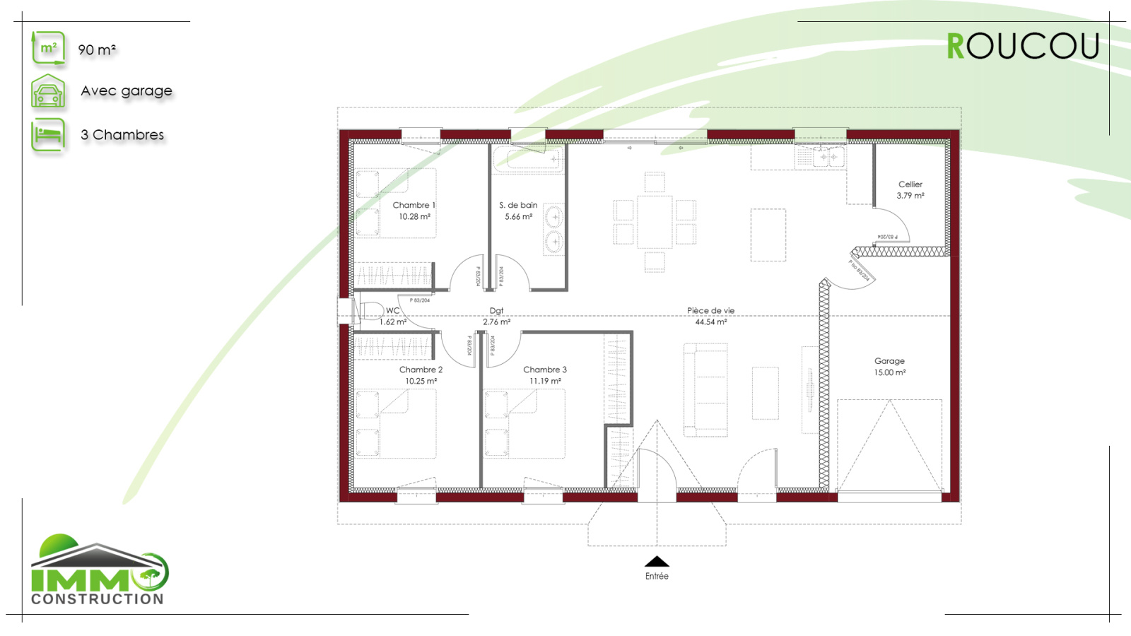
Grâce à notre collaboration avec un constructeur régional réputé, nous pouvons vous proposer un projet de construction clé en main (terrain + maison RT 2020, 3 chambres, jardin, prestations de qualité) pour un budget total inférieur à 300?000 .

Une opportunité rare pour vivre ou investir dans un cadre de vie exceptionnel, entre forêt et bassin d’Arcachon !

Contactez-nous dès aujourd’hui pour recevoir le plan du lotissement, visiter le terrain ou obtenir une estimation personnalisée de votre projet de construction.


Les informations sur les risques auxquels ce bien est exposé sont disponibles sur le site Géorisques
Descriptif de ce bien
Général
Code postal 33125
surface terrain 635 m²
Terrain constructible OUI
Surface constructible 635
Détails
Terrain Viabilisé OUI
Raccordement eau NON
Raccordement gaz NON
Raccordement électricité NON
Raccordement téléphone NON
Financier
Prix de vente honoraires TTC inclus 121 000 €
Copropriété
Copropriété NON
Autour du bien
  • Commerces et santé
  • Loisirs
  • Ecoles
  • Transports
  • Pratique
Contacter pour ce bien
L'agence
Téléphone 07 49 92 58 02
Adresse
60 RUE LAFAURIE DE MONBADON 33200 Bordeaux

* Champ obligatoire

Les informations recueillies sur ce formulaire sont enregistrées dans un fichier informatisé par La Boite Immo agissant comme Sous-traitant du traitement pour la gestion de la clientèle/prospects de l'Agence / du Réseau qui reste Responsable du Traitement de vos Données personnelles. La base légale du traitement repose sur l'intérêt légitime de l'Agence / du Réseau. Elles sont conservées jusqu'à demande de suppression et sont destinées à l'Agence / au Réseau. Conformément à la loi « informatique et libertés », vous disposez des droits d’accès, de rectification, d’effacement, d’opposition, de limitation et de portabilité de vos données. Vous pouvez retirer votre consentement à tout moment en contactant directement l’Agence / Le Réseau. Consultez le site https://cnil.fr/fr pour plus d’informations sur vos droits. Si vous estimez, après avoir contacté l'Agence / le Réseau, que vos droits « Informatique et Libertés » ne sont pas respectés, vous pouvez adresser une réclamation à la CNIL. Nous vous informons de l’existence de la liste d'opposition au démarchage téléphonique « Bloctel », sur laquelle vous pouvez vous inscrire ici : https://www.bloctel.gouv.fr Dans le cadre de la protection des Données personnelles, nous vous invitons à ne pas inscrire de Données sensibles dans le champ de saisie libre.
Ce site est protégé par reCAPTCHA, les Politiques de Confidentialité et les Conditions d'Utilisation de Google s'appliquent.

Découvrir nos outils